
鞏義市仁源水處理材料廠
聯系人:孫經理
手機:15838253283(微信同號)
電話:0371-66557686
郵箱:1813885391@qq.com
地址:河南省鞏義市工業園區
聚合氯化鋁廠家:常用混凝澄清設備概述
聚合氯化鋁PAC,聚合氯化鋁PAC價格,聚合氯化鋁PAC廠家
1.混合設備
混合設備的作用是,使藥劑迅速、均勻地分散到水流中,并形成的帶電粒子并與原水中的膠體顆粒及其它懸浮顆粒充分接觸,形成許多微小的絮凝物(又稱小礬花)。
為了增加顆粒間的碰撞,通常要求水處于湍流狀態,并在2min以內形成絮凝物。為使水流產生湍流可利用水力或機械設備來完成;旌显O備的作用是讓藥劑迅速、均勻地擴散到水流中,使之形成的帶電粒子并與原水中的膠體顆粒及其它懸浮顆粒充分接觸,形成許多微小的絮凝物(又稱小礬花)。
為了增加顆粒間的碰撞,通常要求水處于湍流狀態,并在2min以內形成絮凝物。為使水流產生湍流可利用水力或機械設備來完成。采用水力混合設備時,通常使用產生的水頭????控制攪拌強度,一般為0.4~1.0m。采用機械設備時,是按輸入水流中的功率控制攪拌強度,一般按速度梯度為700~1000s-1(單位)計算確定。
混合設備種類很多,分管道混合,水泵混合,水力混合和機械混合等,其中管道混合,水泵混合常用于直流凝聚。
直流凝聚是在過濾設備之前投加混凝劑,原水和混凝劑經混合設備充分混合后直接進入過濾設備,經過濾層的接觸混凝作用就能較徹底地去除懸浮物。直流凝聚處理通常用于低濁水的處理。
(1)管道式混合
管道式混合是將配制好的藥液直接加到混凝沉降設備或絮凝池的管道中。因為它具有不需另設混合設備和布置簡單等優點,所以應用較多。
為使藥劑能與水迅速混合,加藥管應伸入水管中部,伸入距離一般為水管直徑的1/3~1/4。另外,為了混合均勻,通常規定管道式混合投藥點至水管末端出口的距離不小于50倍的水管直徑,而且管道內的水速宜維持在1.5~2.0m/s,加藥后水在沿途水頭損失不應小于0.3~0.4m,否則應在管道上裝設節流孔板。
(2)水泵式混合
水泵式混合是一種機械混合,它是將藥劑加至水泵吸水管中或吸水喇叭口處,利用水泵葉輪高速旋轉產生的局部渦流,使水和藥劑快速混合,它不僅混合效果好,而且不需另外的機械設備,也是目前經常采用的一種混合方式。
管道式混合與水泵式混合都常用于靠近沉降澄清設備的場合,如果距離太長,容易在管道內形成絮凝物,導致在管道內沉積而堵塞管路。
(3)渦流式混合
渦流式混合主要原理是將藥劑加至水流的漩渦區,利用激烈旋轉的水流達到藥劑與水的均勻快速混合。
水力式混合
水力式混合形式很多,在早期的水處理中曾采用過水躍(不容易懂)合和跌水混合,它們都是將藥劑加至水流的漩渦區,利用激烈旋轉的水流達到快速混合。
近些年來,人們研究了各種型式的“靜態混合器”,并得到廣泛的應用。這種混合裝置呈管狀,接在進水的管路上。
管內按設計要求裝設若干個固定混合單元,每一個單元由2~3塊擋板按一定角度交叉組合而成,形式多種多樣,圖1-2給出了一種單元的示意結構。當水流通過這些混合單元時被多次分割和轉向,達到快速混合的目的。它有結構簡單、安裝方便等優點。

圖1-2靜態混合器示意圖
(4)機械混合
機械混合是利用電動機驅動螺旋器或漿板進行強烈混合,通常在10s~30s以內完成。一般認為螺旋器的效果比漿板好,因為漿板容易使整個水流隨漿板一起轉動,混和效果較差。
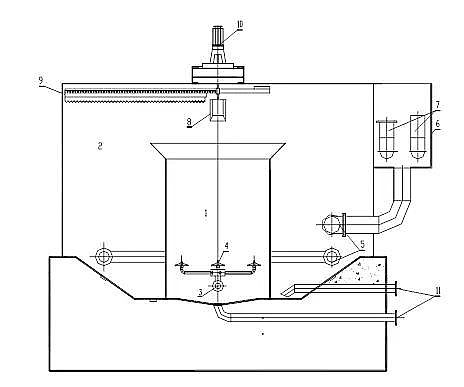
2.泥渣循環型澄清池
(1)機械攪拌澄清池
機械攪拌澄清池是一種泥渣循環型澄清池,池體由第一反應室、第二反應室和分離室三部分組成,見圖1-3。
這種澄清池的工作特點是利用機械攪拌葉輪的提升作用來完成泥渣的回流和接觸絮凝。
原水由進水管進入環形三角配水槽內混合均勻,然后由槽底配水孔流入第一反應室,在此與分離室回流泥渣混合,混合后的水再經葉輪提升至第二反應室繼續反應以形成較大的絮粒,第二反應室設有導流板,以消除因葉輪提升作用所造成的水流旋轉,使水流平穩地經導流室流入分離室沉降分離,分離區的上部為清水區,清水向上流入集水槽和出水管。
分離室的下部為懸浮泥渣層,少部分排入泥渣濃縮器,濃縮至一定濃度后排出池外;炷齽┮话慵釉谶M水管中,絮凝劑加在第一反應室。
圖1-3機械攪拌澄清池示意圖
1—進水管;2—環形進水槽; 3—第一反應室; 4—第二反應室; 5—導流室; 6—分離室;
7—集水槽;8—泥渣濃縮室;9—加藥管;10—攪拌葉輪; 11—導流板;12—傘形板
(2)水力循環澄清池
水力循環澄清池也是一種泥渣循環型澄清池,其基本原理和結構與機械攪拌澄清池相似,只是泥渣循環的動力不是采用專用的攪拌機,而是靠進水本身的動能,所以它的池內沒有轉動部件。
由于它結構簡單,運行管理方便、成本低,適宜處理水量為50~400m3/h,進水懸浮物含量小于2000mg/L,高度上很適宜與無閥濾池相配套,因此在火電廠水處理中應用較多。
水力循環加速澄清池主要由進水混合室(噴嘴、喉管)、第一反應室、第二反應室、分離室、排泥系統、出水系統等部分組成,見圖1-4。原水由池底進入,經噴嘴高速噴入喉管內,此時在喉管下部喇叭口處造成一個負壓區,高速水流將數倍于進水量的泥渣吸入混合室。
水、混凝劑和回流的泥渣在混合室和喉管內快速、充分混合與反應。混合后的水的流程與機械加速澄清池相似,即由第一反應室→第二反應室→分離室→集水系統。從分離室沉下來的泥渣大部分回流再循環,少部分泥渣進入泥渣濃縮室濃縮后排出池外。
噴嘴是水力循環澄清池的關鍵部件,它關系到泥渣回流量的大小。泥渣回流量除與原水濁度、泥渣濃度有關外,還與進水壓力、噴嘴內水的流速、喉管的管徑等因素有關。運行中可調節噴嘴與喉管下部喇叭口的間距來調整回流量。調節的方法為:①利用池頂的升降機構使喉管和第一反應室一起上升或下降,②在檢修期間更換噴嘴。

圖1-4水力循環澄清池示意圖
1—混合室;2—噴嘴; 3—喉管; 4—第一反應室; 5—第二反應室; 6—分離室;
7—環形集水槽;8—穿孔集水管;9—污泥斗;10—傘形罩; 11—進水管;12—排泥管
(3)澄清池的運行管理
a.運行前的準備工作
檢查池內設備的空池運行情況。
進行原水的燒杯試驗,取得最佳混凝劑和最佳投藥量。
b.啟動運行
盡快達到所需泥渣濃度:使進水量為設計出水量的1/2~2/3,適當加大投藥量(約正常計量的1~2倍),減小第一反應室的提升水量。
在泥渣形成過程中,逐步提高泥渣回流量。
在形成泥渣過程中,應定期取樣測定池內各部位的泥渣沉降比,若第一反應室和池底部泥渣沉降比逐步提高(此句不通!),則表明泥渣層在2~3h后即可形成,可逐步減少加藥量。若發現泥渣比較松散、絮凝體較小或原水水溫和濁度較低,可適當向池內投加粘土促使泥渣層盡快形成。
當泥渣層形成后,出水濁度應達到設計要求:將加藥量減至正常值,然后逐漸加大進水量,每次增加水量不超過額定水量的20%,間隔不得低于1h。
當泥渣面達到規定高度時,應進行排泥,使泥渣層高度穩定。為使泥渣保持最佳活性,一般控制第二反應室泥渣沉降比在5min內控制10%~20%。
c.正常運行
澄清池應保持穩定的加藥量和合格的出水質量,應每隔2~4h記錄一次進水流量、壓力,測定一次進、出水濁度,pH值及各部位泥渣沉降比。
澄清池的負荷應穩定,不宜大幅度波動。
進入澄清池的水應無空氣,以避免由于空氣的擾動而影響澄清池的出水質量。
當澄清池需要提高(或降低)負荷運行時,每次增加水量不超過額定水量的20%,間隔不得低于0.5h
澄清排泥一般每天排放1~2次,排泥時間不宜過長,以免活性泥渣排出太多,影響澄清池的正常運行。
當澄清池停運8~24h重新啟動時,因泥渣處于壓實狀態,所以應先從底部排出少量泥渣,并控制較大的進水量和加藥量,使底部泥渣松動、活化后,然后調整出力至設計值2/3左右運行,待出水水質穩定后,再逐漸降低加藥量,加大進水負荷至正常進水量運行。
d.運行中的故障處理
當清水區出現細小絮凝體、出水水質渾濁、第一反應室絮凝體細小、反應室泥渣濃度變小時,都可能是由于加藥量不足或原水濁度太低造成的,應隨時調整加藥量或投加助凝劑。
當分離室泥渣層逐漸上升、出水水質變壞、反應室泥渣濃度增高、泥渣沉降比達到25%以上、或泥渣斗的沉降比超過80%以上時,都可能是由于排泥量不足,應縮短排泥周期,加大排泥量。
清水區出現絮凝體明顯上升,甚至出現翻池現象,可能有以下幾種原因:日光強烈照曬,造成池水對流;進水量超過設計值或配水不均勻造成偏流;投藥中斷或排泥不適;進水溫度突然上升。應需要根據不同原因進行調整。
3.氣浮澄清池
(1)氣浮澄清池機理及工藝過程
氣浮澄清池的運行原理是以微小氣泡作為載體,粘附水中的雜質顆粒,使其視密度小于水,然后顆粒被氣泡攜帶浮升至水面并與水分離去除的方法。
常用的氣浮澄清池采用的是部分回流加壓溶氣氣浮法,設備結構緊湊,將接觸室和分離室設計為一個整體水流銜接更為合理,設計回流比控制在20~30%之間。其附屬設施包括氣浮反應罐、壓力溶氣罐和溶氣水泵。
氣浮工藝過程是在氣浮澄清池反應罐前加入混凝劑,在混凝劑的作用下水中的膠體和懸浮物脫穩形成細小的礬花顆粒;水流進入氣浮池接觸室后礬花顆粒與溶氣水中大量的微細氣泡發生吸附,形成密度小于水的絮體并且上浮,在水面形成浮渣層;清水則由氣浮澄清池下部匯集進入出水槽。
在出水槽內設置水位調節管,調節氣浮澄清池內水位,方便刮渣。氣浮澄清池頂安裝1臺旋轉式刮渣機,池底部設有接觸室、分離室排污管,如圖1-5。
圖1-5氣浮澄清池示意圖
1—接觸室;2—分離室; 3—進水管; 4—溶氣釋放器; 5—集水裝置; 6—集水斗;
7—出水裝置;8—排渣槽;9—刮泥機;10—電機及減速機; 11—接觸室、分離室排污管
(2)氣浮澄清池的運行管理
a.設備的正常運行
電氣柜送電,混凝反應攪拌機、氣浮刮渣機運行正常;
開啟溶氣水泵、壓力溶氣罐進水閥、空氣罐進氣閥,待空氣罐壓力達到設定壓力時,緩開溶氣罐進氣閥,使氣、水同時進入溶氣罐。
調節進水閥,控制壓力溶氣罐內的水位距罐底60~100cm(既不能淹沒填料,也不能過低)。
全開溶氣罐出水閥,防止出水閥門因截流氣泡提前釋出,并從接觸室觀察溶氣水的釋氣情況和效果。
待溶氣和釋氣系統完全正常后,開啟氣浮混凝反應罐出口閥;
開啟混凝劑加藥計量泵,調整好加藥量;
開啟氣浮反應罐混凝反應攪拌機進行試運;
通過池面觀察氣浮池帶氣絮粒的上浮情況及浮渣的積厚情況,如發現接觸室浮渣面不平,局部冒出大氣泡或水流不穩定,很可能是由于釋放器被堵,應取下釋放器排除堵塞;
如發現分離區浮渣面不平,池面常見大氣泡破裂,則表明氣泡與絮粒粘附不好,應驗查壓力溶氣罐和釋放器,并對混凝系統進行調整;應驗查(什么?)并對混凝系統進行調整;
待水位穩定后,用進水閥門調節至設計流量為止;
待浮渣積至8-10cm厚時,啟動刮渣機進行刮渣。觀察刮渣和排渣能否正常進行,出水水質是否受到影響;
運行過程中,定時檢查水泵、空壓機溫升和軸承溫度,發現異常,立即停車檢查。
b.刮渣步驟
關閉氣浮池出口電動閥,將氣浮池水位抬高到刮渣水位;
按下刮渣機啟動開關,啟動刮渣機;
當刮渣機刮板轉過兩到三圈回到刮渣槽內,停刮渣機。
c.溶氣釋放器沖洗步驟
在運行過程中,有時會出現釋放器被堵的情況,可以采取以下的沖洗措施:
使空氣罐壓力達到設定值時(高于0.3MPa);
打開沖洗進氣閥門,此時溶氣罐進出水閥都應處于開啟狀態;
15秒鐘后關閉反沖進氣閥門;
打開放氣閥門,放凈反沖管路中的高壓空氣。
如有疑問請撥打:15838253283,免費來電咨詢!
更多聚合氯化鋁詳情點擊:http://m.683996.com/